ST PETERS
32 Edith Street
Deceased Estate - Potential Plus on Dual Block with Existing 2 Bedroom Home!
Arguable the rarest property to hit the St Peters market this year, 32 Edith Street presents a once in a lifetime opportunity to purchase an investment property with development upside, or a well located home in one of St Peters' most highly sought after communities.
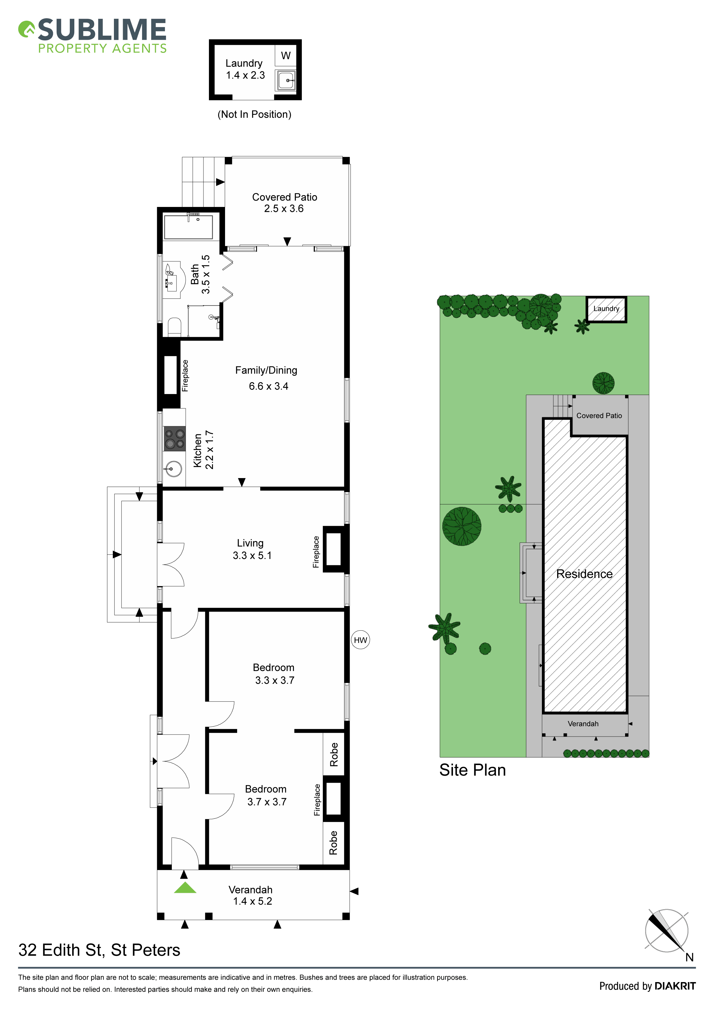
Providing an easy care floor plan, the existing home retains its charming period features whilst offering immediate comfort for the discerning home buyer or investor. With versatile space to create a potential 2nd storey addition, this property can also be subdivided (subject to council approval) to construct a second dwelling whilst retaining the original home.
Features include:
- Well proportioned interiors with renovated internals.
- Spacious separate living and dining areas with exposed brick feature wall and original fireplaces.
- Two double bedrooms with original high patterned ceilings.
- Updated kitchen with island bench and bathroom with modern inclusions.
- Large rear yard and automatic gate with off street parking.
- Generous 370sqm approx land holding with potential to subdivide and construct a second dwelling.
- Strong rental potential in a high growth location.
Extremely well located, this property provides a private urban oasis within mere footsteps to St Peters train station, city buses, beautiful Sydney Park, vibrant lifestyle shops and eateries of King Street and close proximity to Marrickville Metro Shopping Centre.
